Tu mejor opción
Leer más
Revisa algunos proyectos
Leer más
|

Cabaña doble H. valor mt2

Descripción

Detalle de Materiales y obra. Tipo Cabaña

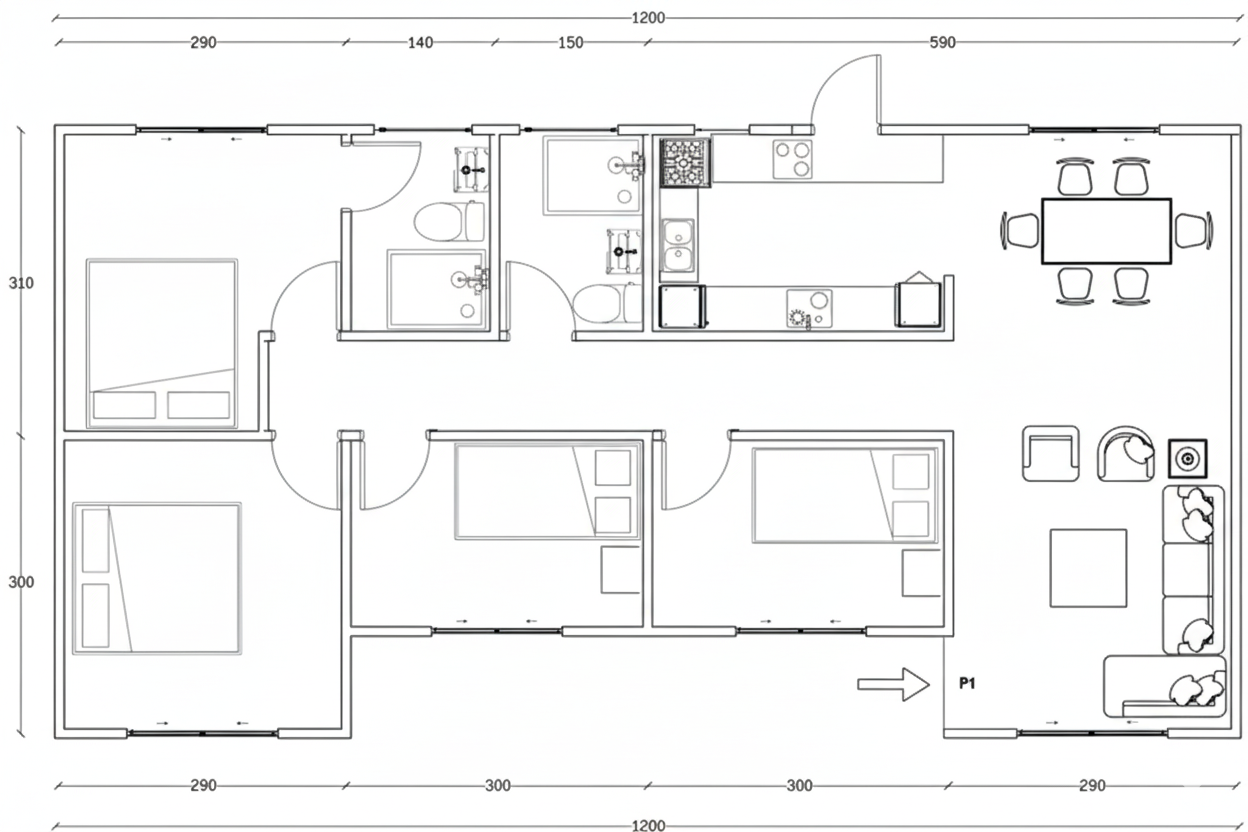
Desde los 72 mts2

1. Estructura y Obra Gruesa

·Fundaciones: Pilotes de 5 a 6 pulgadas, anclados a la base de la casa.

·Vigas y Piso: Vigas de 2x6 pulgadas y piso machihembrado de 1 pulgada, con anclajes al terreno.

·Muros exteriores: Tabiquería de 2x3 pulgadas con revestimiento de madera impregnada (tinglado o medialuna), papel fieltro y Aislapol.

·Muros interiores: Tabiquería de 2x3 pulgadas, con revestimiento de machihembrado de 1/2 pulgada.

·Cubierta de Techo: Estructura con vigas de 2x6, forro interior de machihembrado de 1/2 pulgada, Fisiterm y cubierta exterior de zinc acanalado.

·Ventanas: Marcos de aluminio en color titanio con vidrios.

2. Puertas e Instalaciones

·Puerta Principal: Puerta de pino.

·Puertas Interiores: Puertas de MDF.

·Instalación Eléctrica: Circuito completo con cables de 2.5, que incluye enchufes, interruptores y plafones para iluminación.

·Instalación Sanitaria: Tuberías de PPR para agua fría y caliente en cocina y baño.

·Agua Caliente: Instalación de Calefont.

3. Baños y Cocina

·Baño: Incluye sala de baño simple ( 2 baños ), cerámicas blancas en muros, piso flotante SPC resistente al agua, y un shower door de 80x80 cm.

·Cocina: Incluye lavaplatos simple.

Artículos seleccionados

Envíanos un mensaje de WhatsApp